Jw_cad 作者の公式ページではありません m(_ _)m Jw_cadに特化した情報サイトです。各処に広告が表示されますがご了承ください

【線記号変形】引き違い戸の作図

概要CAD_Dwg+α任意の間口に引き違い戸を作図する線記号変形です。クロックメニュー右AM3時「中心点・A点」で、引き違い戸の中心位置を指定します。壁(柱)の端点を指定すると、引き違い戸が作図できます。詳細内容を見る

【線記号変形】ドアの作図

概要CAD_Dwg+α建築平面図で簡単なドアを作図する線記号変形です。開口部の両側2点を指定すると、開口部の幅に合わせてドアと円弧が作図できます。詳細内容を見る

【線記号変形】六角形の作図その2

概要CAD_Dwg+α円に内接する六角形を作図する線記号変形です。詳細内容を見る
広告

【線記号変形】六角形の作図

概要CAD_Dwg+α対辺の長さを基準に、任意の六角形を作図する線記号変形です。内接円も同時に作図する線記号変形もあります。詳細内容を見る

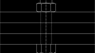
【線記号変形】ネジ断面の作図

概要CAD_Dwg+α機械加工部品のネジ断面を作図する線記号変形です。線記号変形データは、縮尺にあわせてそれぞれ作成する必要があります。M4の参考データを紹介します。詳細内容を見る

【線記号変形】長穴/小判穴その2

概要CAD_Dwg+α両端を指定して長穴/小判穴を作図する線記号変形を追加します。サンプルデータは、3×Lの長穴を作図できます。詳細内容を見る

【線記号変形】長穴/小判穴

概要CAD_Dwg+α機械図面で使用する長穴/小判穴の線記号変形を作成しました。サンプルデータは、3 X Lの長穴を作図できます。円弧の中心間を指定することで任意長さの作図が可能です。詳細内容を見る

【OPT-1】鉄骨ボルト

概要Jw_cad for windows 部品建具平面ファイルですが、内容は鉄骨ボルトです。詳細内容を見る

【OPT-1】鉄骨ブレース

概要Jw_cad for windows 部品建具平面ファイルですが、内容は鉄骨ブレースです。アングルブレース、丸棒を収録。 サムネールには、部材数が60を超えるため仮線表示されない部分もあります。内法(無指定)、芯ずれ0で作図してください。詳細内容を見る