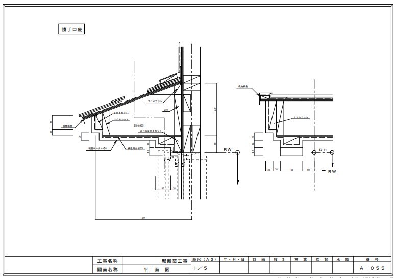
2×4ディテール集№2 勝手口庇~其のニ 2026.01.09 概要 CADがある部屋 http://www2.tba.t-com.ne.jp/akira-jwcad 2×4ディテール集№2勝手口庇~其のニ データーはJWC形式です。 詳細内容を見る